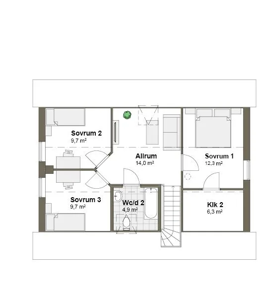
Viken – Varbergshus | 6 rum | Husval