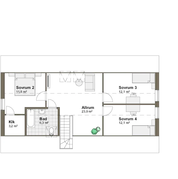
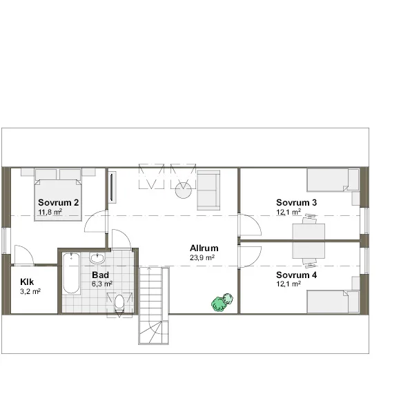
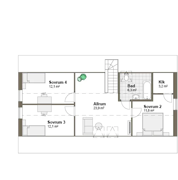
Ängalyckan – Varbergshus | 5 rum | Husval