









Jämför de mest populära enplanshusen från Sveriges hustillverkare. Priser, storlekar och specifikationer – hitta ditt perfekta enplanshus.
Läs guide

Komplett prisguide för att bygga hus i Sverige 2026. Se alla kostnadsposter – huspaket, mark, grund, VA och mer – och räkna ut vad ditt husbygge kostar.

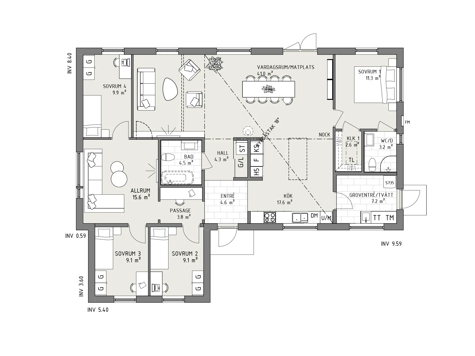
Smart 150
Myresjöhus · Från 3.6 mkr
Smart 150
Från 3.6 mkr
Från
3 645 179 kr
Boarea
150 m²
Bruttoarea
169 m²
Rum
6
Sovrum
4
Badrum
2
Hustyp
EnplanshusStil
KlassisktEgenskaper

Söker du ett hus som detta?
Beskriv vad du letar efter och låt hustillverkare kontakta dig.
546 777 kr
Under byggtiden med byggnadskreditiv amorterar du inte. Efter inflyttning kan du ansöka om amorteringsfrihet upp till 5 år (max 85% belåningsgrad).
Beräkningen är en uppskattning. Kontakta din bank för exakta villkor.
Skaffa lånelöfte — jämför räntor från flera banker
Annonsplats — kontakta oss för partnerskap
Från 3 500 870 kr
Läs guide
Våningar
1 plan