





Jämför de bästa fritidshusen från Sveriges hustillverkare. Stugor, sommarhus och fritidsbostäder – hitta din drömstuga.
Läs guide

Allt du behöver veta om bygglov för nybyggnad av villa. Hur du ansöker, vad det kostar, hur lång tid det tar och vad som gäller utan bygglov.
Läs guide
Från
1 557 900 kr
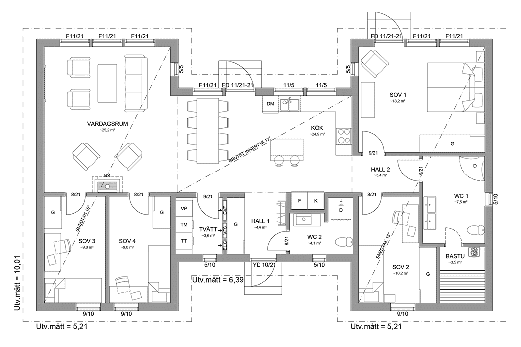
Boarea
129 m²
Bruttoarea
145 m²
Sovrum
4
Badrum
2
Våningar
1 plan
Höjd
3.15 m
Hustyp
FritidshusÄr Hudikhus ditt företag?
Gör anspråk på din profil för att hantera leads, redigera information och nå fler potentiella kunder.
Gör anspråk på profilenBygger du eller har du byggt Form 145 från Hudikhus? Dela ditt bygge och inspirera andra!
Dela ditt byggeSöker du ett hus som detta?
Beskriv vad du letar efter och låt hustillverkare kontakta dig.
233 685 kr
Under byggtiden med byggnadskreditiv amorterar du inte. Efter inflyttning kan du ansöka om amorteringsfrihet upp till 5 år (max 85% belåningsgrad).
Beräkningen är en uppskattning. Kontakta din bank för exakta villkor.
Skaffa lånelöfte — jämför räntor från flera banker
Annonsplats — kontakta oss för partnerskap

Komplett guide för att välja rätt tomt. Läge, geologi, VA, detaljplan och juridik – allt du behöver veta innan du köper tomt för husbygge.
Läs guide