



Komplett prisguide för att bygga hus i Sverige 2026. Se alla kostnadsposter – huspaket, mark, grund, VA och mer – och räkna ut vad ditt husbygge kostar.
Läs guide

Ska du bygga ett kataloghus eller anlita en arkitekt? Vi jämför pris, tid, anpassningsmöjligheter och kvalitet så att du kan fatta rätt beslut.
Läs guide
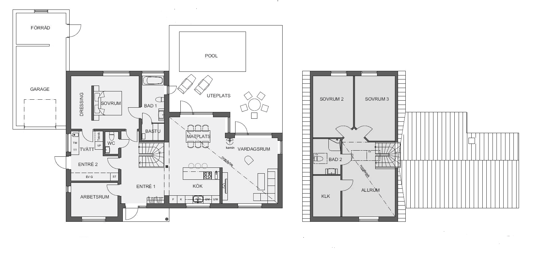
Boarea
182 m²
Sovrum
3
Våningar
2 plan
Hustyp
1,5-planshusÄr Dast Stenhus ditt företag?
Gör anspråk på din profil för att hantera leads, redigera information och nå fler potentiella kunder.
Gör anspråk på profilenBygger du eller har du byggt Hus 303 från Dast Stenhus? Dela ditt bygge och inspirera andra!
Dela ditt byggeSöker du ett hus som detta?
Beskriv vad du letar efter och låt hustillverkare kontakta dig.
375 000 kr
Under byggtiden med byggnadskreditiv amorterar du inte. Efter inflyttning kan du ansöka om amorteringsfrihet upp till 5 år (max 85% belåningsgrad).
Beräkningen är en uppskattning. Kontakta din bank för exakta villkor.
Skaffa lånelöfte — jämför räntor från flera banker
Annonsplats — kontakta oss för partnerskap


Vilken husgrund passar ditt hus och din tomt? Vi jämför platta på mark, källare, krypgrund och plintar med pris, för- och nackdelar.
Läs guide