


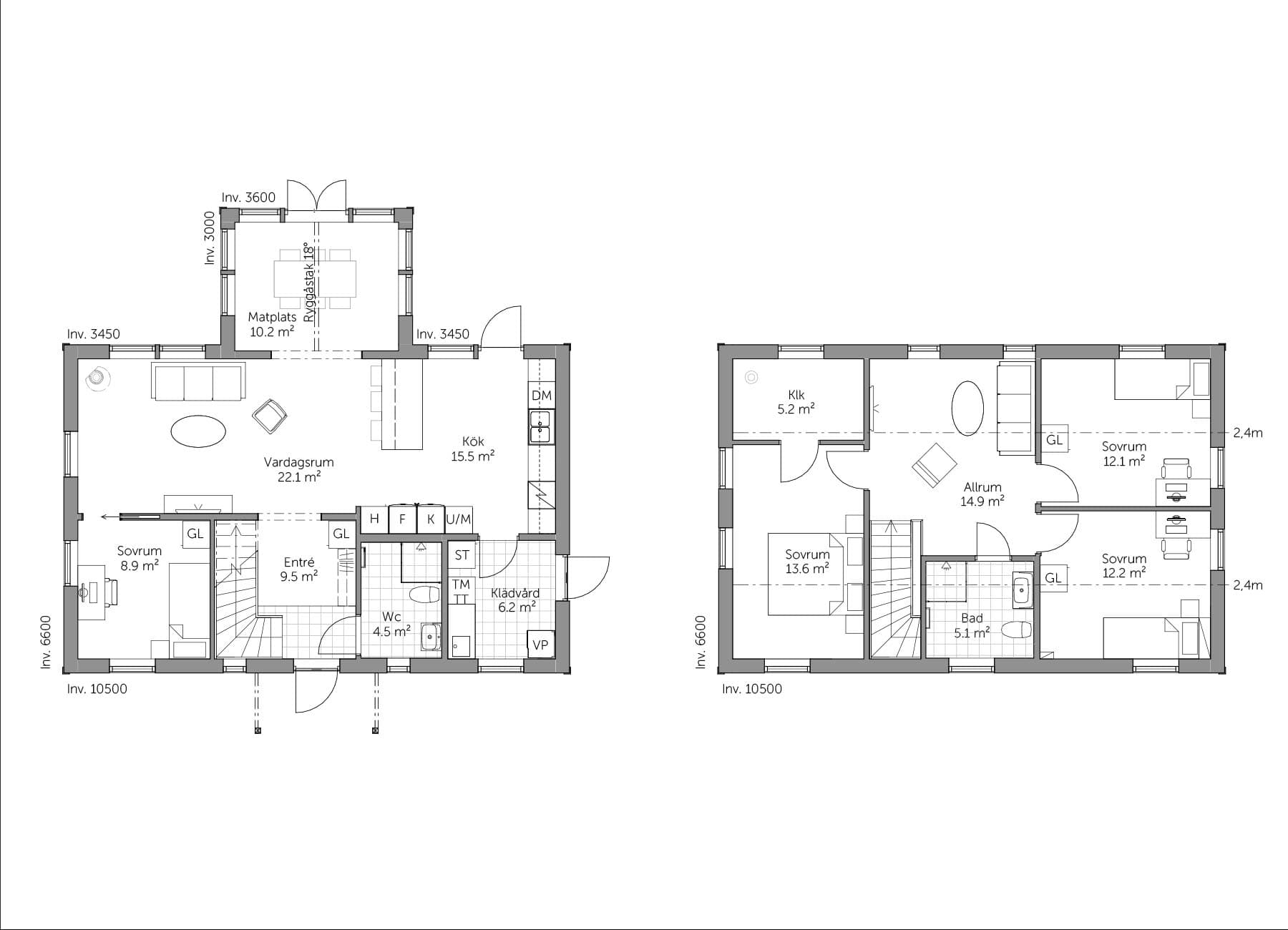
Boarea
149.5 m²
Jämför de mest populära tvåplanshusen från Sveriges hustillverkare. Priser, storlekar och specifikationer – hitta ditt perfekta tvåplanshus.
Läs guide

Komplett prisguide för att bygga hus i Sverige 2026. Se alla kostnadsposter – huspaket, mark, grund, VA och mer – och räkna ut vad ditt husbygge kostar.
Läs guide
Bruttoarea
96.5 m²
Rum
7
Våningar
2 plan
Hustyp
TvåplanshusÄr Borohus ditt företag?
Gör anspråk på din profil för att hantera leads, redigera information och nå fler potentiella kunder.
Gör anspråk på profilenBygger du eller har du byggt Nova 146 från Borohus? Dela ditt bygge och inspirera andra!
Dela ditt byggeSöker du ett hus som detta?
Beskriv vad du letar efter och låt hustillverkare kontakta dig.
375 000 kr
Under byggtiden med byggnadskreditiv amorterar du inte. Efter inflyttning kan du ansöka om amorteringsfrihet upp till 5 år (max 85% belåningsgrad).
Beräkningen är en uppskattning. Kontakta din bank för exakta villkor.
Skaffa lånelöfte — jämför räntor från flera banker
Annonsplats — kontakta oss för partnerskap