

Jämför de mest populära enplanshusen från Sveriges hustillverkare. Priser, storlekar och specifikationer – hitta ditt perfekta enplanshus.
Läs guide

Komplett prisguide för att bygga hus i Sverige 2026. Se alla kostnadsposter – huspaket, mark, grund, VA och mer – och räkna ut vad ditt husbygge kostar.

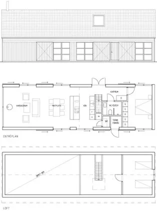
Alsen 115
Arvesund
Alsen 115
Boarea
115 m²
Bruttoarea
96 m²
Våningar
1 plan
Höjd
3.4 m
Hustyp
EnplanshusÄr Arvesund ditt företag?
Gör anspråk på din profil för att hantera leads, redigera information och nå fler potentiella kunder.
Gör anspråk på profilenBygger du eller har du byggt Alsen 115 från Arvesund? Dela ditt bygge och inspirera andra!
Dela ditt byggeSöker du ett hus som detta?
Beskriv vad du letar efter och låt hustillverkare kontakta dig.
375 000 kr
Under byggtiden med byggnadskreditiv amorterar du inte. Efter inflyttning kan du ansöka om amorteringsfrihet upp till 5 år (max 85% belåningsgrad).
Beräkningen är en uppskattning. Kontakta din bank för exakta villkor.
Skaffa lånelöfte — jämför räntor från flera banker
Annonsplats — kontakta oss för partnerskap
Pris på förfrågan
Läs guide